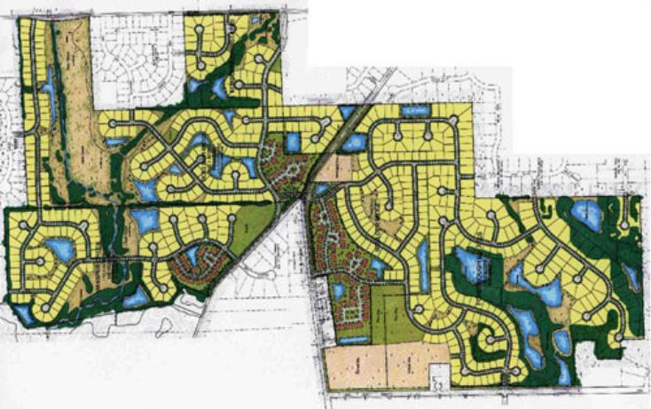
Western Growth Area
Mokena, IL
Western Growth Area