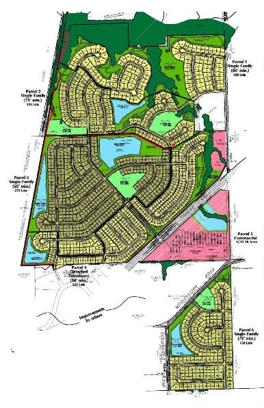
Elwood Lakes
Elwood, IL
Elwood Lakes