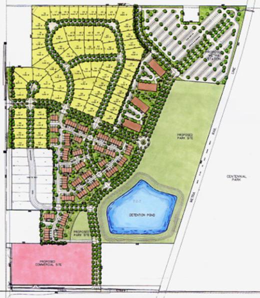
Colette Highlands PUD

Colette Highlands PUD
Orland Park, IL